课程名称:环境设计制图
学 时:48学时
班 级:环境设计2019-2班
指导老师:张启蒙
课程介绍:环境设计制图的主要任务是培养学生的基本识图、绘图能力,空间想象和思维能力,以及手工绘图的实际技能。采取项目化的安排,在完成各个学习项目的过程中,学习绘图知识和识读工程图纸的能力,本课程是环境设计专业主干技术基础课。
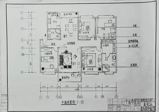
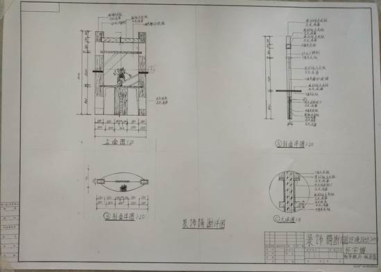
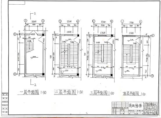
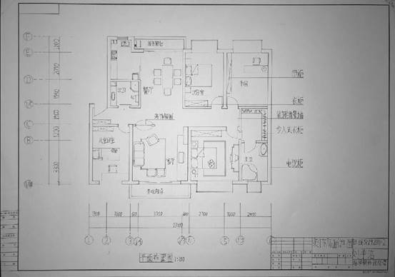
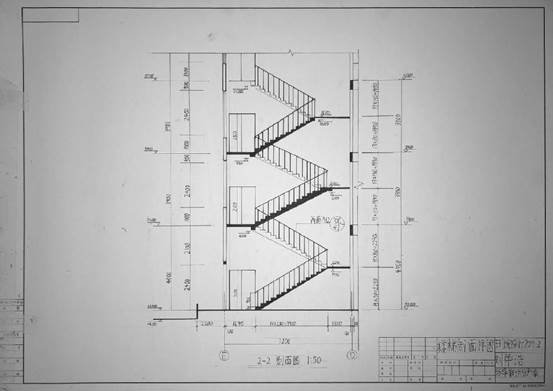
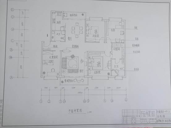
作品主题:手工绘制室内设计家装工程项目施工图纸以及长仿宋字练习
作品要求:规格要求A2、5P,依据《建筑制图标准》GB/T 50104,准确手工绘制家装设计施工图,能够正确表现施工图纸标准画法,图纸比例自定,长仿宋字练习在环境设计专业工程制图范围选字即可
学生作品:




环境设计2019-2秦誉涵






环境设计2019-2张秀毅




环境设计2019-2怀宇娜


环境设计2019-2孙美丽


环境设计2019-2潘昊


环境设计2019-2刘承浩


环境设计2019-2汤凯丽


环境设计2019-2杨岩岩






